JAVNA VATROGASNA POSTROJBA GRADA VARAŽDINA i
DRUŠTVO ARHITEKATA VARAŽDINA OBJAVLJUJU REZULTATE za
javni, opći, u jednom stupnju, anonimni, prvog stupnja složenosti za realizaciju
ARHITEKTONSKO – URBANISTIČKI NATJEČAJ
za izradu idejnog rješenja
CENTAR VATROGASNE DJELATNOSTI U VARAŽDINU
CPV: 71200000-0 – arhitektonske i srodne usluge
Oznaka iz Plana nabave Raspisivača natječaja: VN-1/2025
Registarski broj natječaja Hrvatske komore arhitekata: 176-25/VŽ-AU/NJN
RASPISIVAČ I INVESTITOR
Javna vatrogasna postrojba Grada Varaždina, Trenkova 44, Varaždin, OIB: 31995833807, internetska adresa: www.jvp-varazdin.hr; telefon: +385914693222; email: jvp@jvp-varazdin.hr, kojeg zastupa Mario Rogina, mag.ing.sec., zapovjednik
PROVODITELJ
Društvo arhitekata Varaždina (DAV), Optujska 99, 42000 Varaždin OIB: 97116871661, Internetska adresa: www.davz.hr, koje zastupa predsjednik Duje Kovačević, mag.ing.arch., telefon: +385915741616, e-mail adresa: arhitekt.vz@gmail.com
IZRAĐIVAČICA PROGRAMA NATJEČAJA
Maja Kireta, dipl.ing.arh., ovlaštena arhitektica A3310
VRSTA, STUPANJ SLOŽENOSTI I STUPANJ PROVEDBE NATJEČAJA
Natječaj je otvoreni, javni, opći, u jednom stupnju, prvog stupnja složenosti za realizaciju, arhitektonsko-urbanistički. Predmet natječaja je idejno rješenje Centra vatrogasne djelatnosti u Varaždinu.
PREDMET I SVRHA NATJEČAJA
Cilj natječaja je odabir najboljeg idejnog arhitektonsko-urbanističkog rješenja Centra vatrogasne djelatnosti u Varaždinu između više različitih prijedloga.
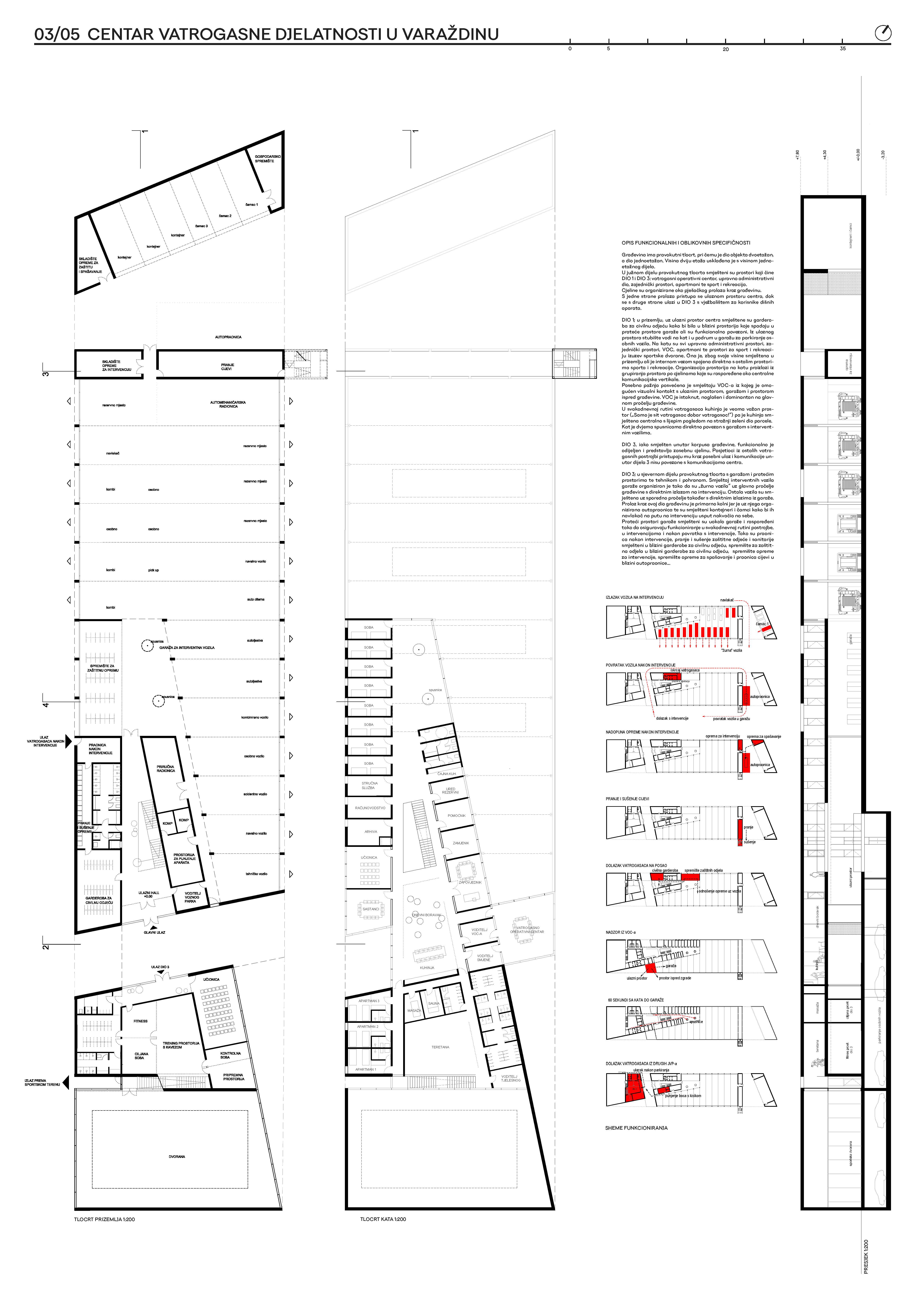
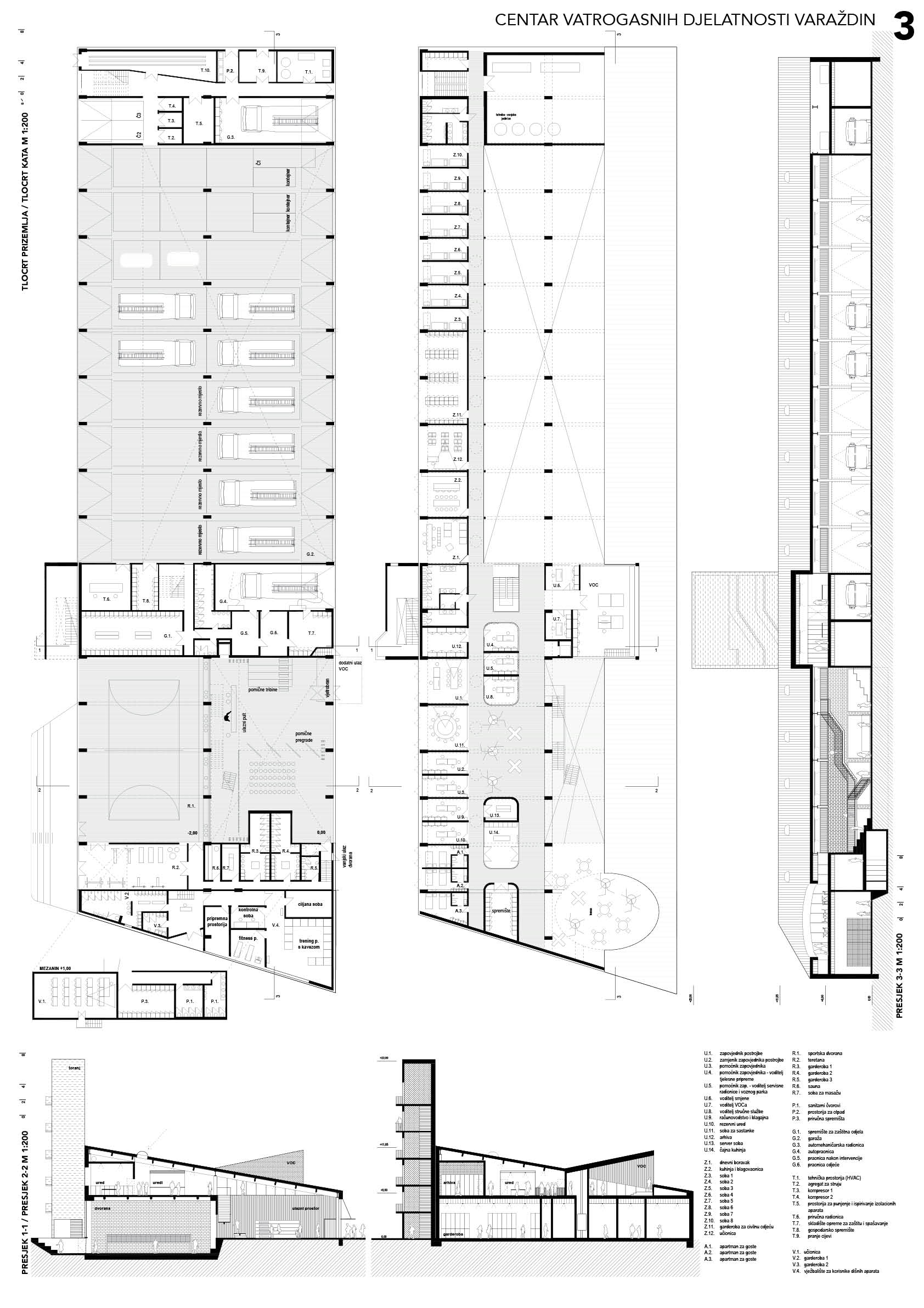
Budući Centar vatrogasne djelatnosti u Varaždinu smješta se na lokaciju za koju je Generalnim urbanističkim planom grada Varaždina propisana obaveza provedbe arhitektonskog natječaja. Osim toga, želja je naručitelja, Javne vatrogasne postrojbe grada Varaždina, da dobije najbolje moguće rješenje zgrade ovog Centra kakvo Varaždin, kao kolijevka hrvatskog vatrogastva, zaslužuje te se i stoga odlučuje na provedbu arhitektonsko-urbanističkog natječaja. Namjera naručitelja je, dakle, gradnja suvremene vrhunski oblikovane i funkcionalne zgrade koja utječe na lokalnu i širu zajednicu i postojeći prostorni kontekst. Nabavom projektno tehničke dokumentacije putom arhitektonsko-urbanističkog natječaja će se osigurati najbolje prostorno, funkcionalno i oblikovno rješenje potrebnih sadržaja i prostora za odvijanje profesionalne vatrogasne službe kapaciteta šezdeset profesionalnih vatrogasaca koji su temeljna operativna snaga sustava civilne zaštite na području Varaždinske županije i grada Varaždina.
Zgrada površine BRP=4955m2 se smješta na katastarske čestice 3688/6 i 3688/2 k.o. Varaždin uz zapadni rub istočne gradske obilaznice. Planirana investicija iznosi 10.000.000,00Eur+PDV.
Program natječaja propisuje suvremeni izričaj, ekonomičnost, racionalnost, funkcionalnost i provedivost. Krajnji cilj natječaja je omogućiti pronalaženje najboljeg rješenja između više različitih prijedloga, prema kriterijima ocjenjivanja propisanim uvjetima natječaja. Odabrano idejno rješenje će služiti kao podloga za izradu projektno-tehničke dokumentacije za ishođenje akata za građenje, izvođenje i nabavu radova. S autorima odabranog rješenja će se sklopiti ugovori o izradi projektno-tehničke dokumentacije kako je definirano uvjetima natječaja.
OCJENJIVAČKI SUD je djelovao u sastavu:
-
Dinko Peračić, ovlašteni arhitekt, predsjednik OS
-
Iskra Filipović, ovlaštena arhitektica
-
Mario Rogina, mag.ing.sec., zapovjednik JVP Grada Varaždina
-
Ana Boljar, ovlaštena arhitektica zamjenica predsjednika SO
-
Bojan Lukman, ing.građ., viši stručni savjetnik za visokogradnju, Grad Varaždin
Zamjenik članova OS -a:
-
Janko Jelić, ovlašteni arhitekt
Tehnička komisija:
-
Maja Kireta, ovlaštena arhitektica
-
Petra Kralj, ovlaštena arhitektica
Tajnica natječaja:
-
Dina Horvat, ovlaštena arhitektica
Na natječaj koji je trajao od 23.04.2025. do 15.1.2026. pristiglo je 35 radova.
Ocjenjivački sud je na VI. sjednici održanoj 26.1.2026. donio Odluku o nagrađenim natječajnim radovima i donio sljedeću Konačnu odluku o dodjeli nagrada:
1.nagrada u bruto iznosu 32.400,00 eur dodijeljena je radu pod šifrom 14 :
AUTORI: Nikola Fabijanić, Juraj Glasinović, Lucija Bunjevac
SURADNICI: Mia Depolo, Damir Kralj


PLAKAT 1, PLAKAT 2, PLAKAT 3, PLAKAT 4, PLAKAT 5
2. nagrada u bruto iznosu 20.250,00 eur dodijeljena je radu pod šifrom 3 :
AUTORI: Antonija Milovac, Tanja Goleš

PLAKAT 1, PLAKAT 2, PLAKAT 3, PLAKAT 4, PLAKAT 5
3.nagrada u bruto iznosu 12.150,00 eur dodijeljena je radu pod šifrom 18:
AUTORI: Ivana Krmpotić Romić, Iva Martinis
SURADNICI: Filip Cvetko, mag.ing.aedif., Igor Jatarević, struč.spec.ing.stroj.

PLAKAT 1, PLAKAT 2, PLAKAT 3, PLAKAT 4,PLAKAT 5, PLAKAT 6
4. nagrada u bruto iznosu 9.720,00 eur dodijeljena je radu pod šifrom 20 :
AUTOR: STRIP LAB; Sima Bučar Fiškin, Vid de Gleria, Jure Henigsman, Miha Kramberger, Živa Miklavčič, Manca Starman, Saša Štuhec

PLAKAT 1, PLAKAT 2, PLAKAT 3, PLAKAT 4, PLAKAT 5
5. nagrada u bruto iznosu 6.480,00 eur dodijeljena je radu pod šifrom 2 :
AUTORI: Mia Nerlović

PLAKAT 1, PLAKAT 2, PLAKAT 3, PLAKAT 4, PLAKAT 5
6. mjesto – RAD POD ŠIFROM 13
AUTORI: Luka Šen, Ema Dunkić

PLAKAT 1, PLAKAT 2, PLAKAT 3, PLAKAT 4
7. mjesto – RAD POD ŠIFROM 24
AUTORI: AO16 d.o.o.; Gorana Stipeč Brlić, Damiana Sobol Turina, Karla Ritoša Breščić, Viviana Rea Doričić, Jelena Maračić
SURADNICI: Luka Šimičić – arhitektura, Goran Stipković – požar, Stjepan Radolović – strojarstvo, Dražena Matić – elektroinstalacije, Matteo Šepić – statika, Vedran Hrvatin – voda

PLAKAT 1, PLAKAT 2, PLAKAT 3, PLAKAT 4
PROCIJENJENA VRIJEDNOST INVESTICIJE
Na temelju izrađene projektno-tehničke dokumentacija, raspisivač/naručitelj će provesti postupke nabave radova i robe ukupne najveće procijenjene vrijednosti investicije u iznosu od 10.000.000,00 EUR+PDV.
UKUPNA PROCIJENJENA VRIJEDNOST NABAVE
Procijenjena vrijednost javne nabave sukladno članku 327. ZJN sastoji se od nagradnog fonda, isplata naknada radnim tijelima, izrade projektno-tehničke dokumentacije te iznosi ukupno 559.080,00EUR. Procijenjena vrijednost javne nabave raščlanjuje se na sljedeće dijelove
– Nagradni fond 81.000,00 Eura bruto.
– Naknade radnim tijelima 28.080,00 EUR bruto.
– Cijena projektno-tehničke dokumentacije 450.000,00 EUR bez PDV.
OSTALI NAVODI
Natječaj se provodi u skladu s glavom II. člancima 327.-331. Zakona o javnoj nabavi („Narodne novine“ broj 120/2016, 114/2022 – dalje u tekstu: ZJN 2016.) te ostalim odredbama ZJN 2016 koje se primjenjuju na projektni natječaj te odredbama Pravilnika o natječajima s područja arhitekture, urbanizma, unutarnjeg uređenja i uređenja krajobraza (NN 85/14) Hrvatske komore arhitekata (dalje: Pravilnik) čijih su se odredbi svi sudionici natječaja dužni pridržavati, ako one nisu u suprotnosti sa ZJN 2016.
Sukladno ZJN 2016, natječaj se objavljuje u Elektroničkom oglasniku javne nabave Republike Hrvatske (dalje u tekstu: EOJN).
U smislu članka 133. ZJN 2016. provedeni natječaj bit će uvjet za pokretanje pregovaračkog postupka bez prethodne objave za dodjelu ugovora o javnoj nabavi usluga. Idejno rješenje nagrađenog autora/koautora je podloga za izradu projektno-tehničke dokumentacije. Na sudjelovanje u pregovaračkom postupku za dodjelu ugovora za izradu projektno-tehničke dokumentacije, bit će pozvan pobjednik natječaja odnosno osoba ovlaštena za projektiranje koju predlaže autor/koautori prvonagrađenog rada.
Dijelovi uvjeta natječaja prema čl. 37. Pravilnika koji nisu navedeni u ovim uvjetima natječaja sastavni su dio Uputa za sudionike. Natjecatelj definiran čl. 2. st. 1. Pravilnika sukladno ZJN 2016. smatra se sudionikom natječaja.
OCJENJIVAČKI SUD
izvor: Društvo arhitekata Varaždina